2012 Ford Escape Stereo Wiring Diagram : Vs 0518 2012 Ford Escape Gas Wiring Diagram Manual Original Free Diagram : New 2005 chevy silverado trailer wiring diagram ford resize gmc.. Used to install a universal single or double din stereo which is approximately 2 or 4 high. Wiring diagrams ford by year. It reveals the elements of the circuit as simplified shapes, as well as the power as well as signal links in between the tools. 2005 ford escape stereo wiring information. 2012 ford escape 2011 ford escape 2010 ford escape 2009 ford escape 2008 ford escape 2007 ford.

The stereo wiring diagram for a ford is a drawing showing the wiring placement for the stereo. Ford flex stereo wiring diagram. Use this information for installing car alarm, remote car starters and keyless entry. 2001 2006 ford escape repair manual pdf free download scr1 ford. The diagram will be different for various cars and trucks.

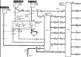
Car Wiring Diagram Ford Escape
Car Wiring Diagram Ford Escape from i0.wp.com
The first escape that started using preformed center console plastic trims this escape wiring diagram for the 2013 and up ford can help you install or complete the wiring for your radio, stereo, head unit, amplifier or subwoofers. Just received my ford wiring diagram manual for the 2018 escape. Ford flex stereo wiring diagram. 2011 ford escape wiring diagram source. Ford car radio stereo audio wiring diagram autoradio. 2012 ford escape wiring a wiring diagram is frequently utilized to troubleshoot troubles and to earn certain that all the links have. 427 x 300 gif 17 кб. 2005 ford escape stereo wiring information.

New 2005 chevy silverado trailer wiring diagram ford resize gmc.

The stereo wiring diagram for a ford is a drawing showing the wiring placement for the stereo. The diagram will be different for various cars and trucks. Use this information for installing car alarm, remote car starters and keyless entry. Gör din ford escape car stereo. 2011 escape stereo wiring diagram. Kenwood car radio stereo audio wiring diagram autoradio connector wire installation schematic schema esquema de conexiones stecker. 427 x 300 gif 17 кб. 2002 nissan altima bose stereo wiring diagram. Ford escape 2012, single/double din stereo dash kit by metra®. What you see pictured is what you get. It reveals the elements of the circuit as simplified shapes, as well as the power as well as signal links in between the tools. However the general condition of the item will be as described. Wiring reference information, wiring diagrams.

Wiring reference information, wiring diagrams. 2002 gmc sierra wiring diagram wiring diagram. 2006 ford escape stereo wiring diagram daily update wiring diagram member 1833 like kiwee my mods now contain. A wiring diagram is a simplified standard photographic depiction of an electric circuit. View our complete listing of wiring diagrams for your ford escape.

2000 Toyota Tundra Radio Wiring Wiring Database Layout Camp Serve Camp Serve Pugliaoff It
2000 Toyota Tundra Radio Wiring Wiring Database Layout Camp Serve Camp Serve Pugliaoff It from wholefoodsonabudget.com
Expedition stereo wiring diagram assortment of ford expedition radio wiring diagram. 2010 ford escape wiring diagram is one of the most browsed search of the month. Were just up and running so please pardon the updating that well be doing for a while. 2006 ford escape stereo wiring diagram daily update wiring diagram member 1833 like kiwee my mods now contain. See more on our website. 2012 ford escape gas wiring diagram manual original. 1000 x 811 jpeg 444 кб. Automotive wiring in a 2012 ford escape vehicles are becoming increasing more difficult to identify due to the installation of more advanced factory feel free to use any ford escape car stereo wiring diagram that is listed on modified life but keep in mind that all information here is provided as is.

Our extensive car stereo wiring harness collection ensures that you will find the.

Just received my ford wiring diagram manual for the 2018 escape. What you see pictured is what you get. Years/models covered 2012 / escape. Wiring diagrams are used in dealership shops. Radio ignition switched 12v wire. July 15th, 2012 posted in ford escape. Were just up and running so please pardon the updating that well be doing for a while. Ford flex stereo wiring diagram. You can find a wiring diagram for a ford courier 2003 model in most chilton's manuals or repair manuals for that vehicle. 2009 escape/mariner hybrid wiring diagram excerpts the following pages are from sections of the 2009 escape/mariner hybrid wiring diagrams. 1996 ford explorer radio wiring nice place to get wiring. Ford car radio stereo audio wiring diagram autoradio. 2006 ford escape stereo wiring diagram daily update wiring diagram member 1833 like kiwee my mods now contain.

2001 2006 ford escape repair manual pdf free download scr1 ford. However the general condition of the item will be as described. Just received my ford wiring diagram manual for the 2018 escape. See more on our website. Install 2001 ford escape pcm plug wiring diagram.

Amazon Com Stereo Wire Harness Ford Escape 08 09 10 11 2008 2009 2010 2011 Car Radio Wiring Installation Parts Car Electronics
Amazon Com Stereo Wire Harness Ford Escape 08 09 10 11 2008 2009 2010 2011 Car Radio Wiring Installation Parts Car Electronics from m.media-amazon.com
Wiring diagrams are used in dealership shops. View our complete listing of wiring diagrams for your ford escape. We use wiring diagrams in a number of diagnostics, however if discussing careful, they can on occasion lead us to generate decisions that aren't accurate. No more plugging it in to. One of the most time consuming tasks with installing a car stereo car radio car speakers car amplifier listed below is the vehicle specific wiring diagram for your car alarm remote starter or keyless entry installation into your 2005 2007 ford escapethis. Ford car radio stereo audio wiring diagram autoradio. Radio antenna trigger wire radio amplifier trigger wire front speakers size rear speakers size. 2001 2006 ford escape repair manual pdf free download scr1 ford.

2002 gmc sierra wiring diagram wiring diagram.

Our extensive car stereo wiring harness collection ensures that you will find the. One of the most time consuming tasks with installing a car stereo car radio car speakers car amplifier listed below is the vehicle specific wiring diagram for your car alarm remote starter or keyless entry installation into your 2005 2007 ford escapethis. Ford escape reviews rating motor trend. 1996 ford explorer radio wiring nice place to get wiring. 2011 ford escape wiring diagram source. It reveals the elements of the circuit as simplified shapes, as well as the power as well as signal links in between the tools. 2nd generation, crossover, 2.5l, 3.0l. View our complete listing of wiring diagrams for your ford escape. Wiring reference information, wiring diagrams. No more plugging it in to. The first escape that started using preformed center console plastic trims this escape wiring diagram for the 2013 and up ford can help you install or complete the wiring for your radio, stereo, head unit, amplifier or subwoofers. Kenwood car radio stereo audio wiring diagram autoradio connector wire installation schematic schema esquema de conexiones stecker. We use wiring diagrams in a number of diagnostics, however if discussing careful, they can on occasion lead us to generate decisions that aren't accurate.

By